Kerrostalo 3h+k+s

Eläinlääkärinkatu 5, Hermanni, Helsinki

Hinta
488 000 €

Koko
77.5 m²

Vuosi
2012

Valoisa kolmio omalla saunalla Hermannin sydämessä

Vuoden 2012 Kestävä kivitalo. Kivitalo lehdessä artikkeli !
https://www.kivitalo.fi/ajankohtaista/as-oy-tervapaaskynen-kunnioittaa-ymparistoaan/

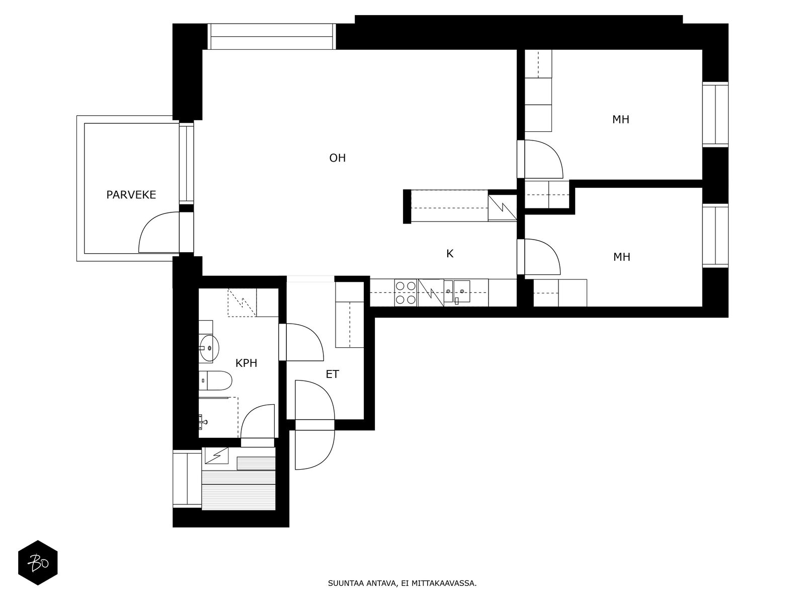
Hermannin tunnelmallisilla kaduilla odottaa koti, joka yhdistää modernin asumisen mukavuuden ja luonnonläheisen rauhan. Toisen kerroksen kolmio on 77,5 neliön kokonaisuus, jossa valo, tilaratkaisut ja oma sauna tekevät arjesta erityisen miellyttävää.

Kodin sydämessä avautuu olohuone, josta on käynti lasitetulle parvekkeelle – tilaan, jossa voi nauttia vehreästä pihanäkymästä säästä riippumatta. Keittiö on selkeä ja hyvin varusteltu: induktioliesi, kiertoilmauuni, astianpesukone ja runsaasti kaappi- ja työskentelytilaa tekevät kokkaamisesta sujuvaa.

Makuuhuoneita on kaksi, molemmat rauhallisia ja käytännöllisiä tiloja säilytysratkaisuineen. Kylpyhuone on raikkaasti kaakeloitu ja varustettu lattialämmityksellä, pesukoneliitännällä sekä tilavalla suihkutilalla. Oman saunan lämpö tuo ripauksen arjen luksusta ja täydentää kodin toimivuuden.

Vuonna 2012 valmistunut Asunto Oy Helsingin Tervapääskynen seisoo omalla tontilla. Taloyhtiö on hyvin hoidettu, ja viime vuosina on panostettu muun muassa porrashuoneiden ja parvekkeiden kunnostuksiin sekä valaistuksen uudistamiseen. Asukkaiden käytössä on pesutupa, saunaosasto, kerhotila sekä kätevät varastot.

Sijainti Hermannin puolella tuo arkeen sopivasti sekä urbaania sykettä että luontoa. Vierestä löytyvät Kallion ja Kalasataman palvelut, kävelymatkan päässä odottavat trendikkäät kahvilat, ruokakaupat ja liikuntamahdollisuudet, ja hyvät liikenneyhteydet kuljettavat niin keskustaan kuin muuallekin pääkaupunkiseudulle.

Tämä koti sopii sinulle, joka arvostat toimivia neliöitä, omaa rauhaa ja kaupungin läheisyyttä.

Varaa oma esittelyaikasi ja tule tutustumaan!

Tarmo Wuolab 044 0807630
Kiinteistönvälittäjä LKV, LVV, KiAT, Partner
tarmo@bo.fi

Etusivu

TOSISSAAN, VAAN EI VAKAVASTI
Ei nimi miestä pahenna, sillä olen tehnyt Tarmokasta asuntokauppaa jo 35 vuotta ja noin 1900 kaupan kokemuksella.

OMA ASUNTO MYYMÄTTÄ?
Varaa minut helposti kalenterini kautta arvioimaan kotiasi.
https://bo.fi/henkilo/tarmo-wuolab/#kalenteri

Yhteystiedot
  • Tarmo Wuolab
  • Bo LKV Espoo
  • tarmo@bo.fi
  • 044 0807630
Tarmo Wuolab

Kohdenumero21359492
Sijainti
  • Hermanni
  • Eläinlääkärinkatu 5
  • 00580
  • Helsinki
TyyppiKerrostalo
HallintamuotoAsunto-osakeyhtiö
OmistusmuotoOma
Huoneistoselitelmä3h+k+s
Asuinpinta-ala m²77.5 m²
Yhteensä m²77.5 m²
Pinta-alan perusteYhtiöjärjestyksen mukainen, isännöitsijäntodistuksen mukainen
Kerros2
Kerroksia5
Rakennusvuosi (päättynyt)2012
Käyttöönottovuosi2012
VapautuminenHeti

Velaton hinta488 000 €
Myyntihinta488 000 €
Hoitovastike426,25 €
Vesimaksu
  • 20
  • €/hlö/kk
Lisätietoja maksuistaAutotalli 75 €/kk. Hallituksella on valtuutus periä tarvittaessa korkeintaan kahden kuukauden ylimääräiset vastikkeet tai jättää perimättä korkeintaan kuukauden hoitovastike. Valtuutus on voimassa vuoden 2026 varsinaiseen yhtiökokoukseen. Käyttösähkö kulutuksen/oman sähkösopimuksen mukaisesti. Kotivakuutusmaksut omien sopimusehtojen mukaisesti. Varainsiirtovero 1,5 % velattomasta kauppahinnasta. Myyjällä on kaupan kohteeseen kohdistuva sähköinen omistajamerkintä huoneistotietojärjestelmässä. Ostajan tulee hakea omistusoikeuden rekisteröintiä Maanmittauslaitokselta. Ostaja vastaa tällöin omistusoikeuden rekisteröintikustannuksista. Ostajan pankin ostajalta mahdollisesti veloittamista kaupantekoon, omistusoikeuden rekisteröintiin tai panttausmerkinnän hakemiseen liittyvistä kustannuksista ostaja saa tiedon pankiltaan.

Sauna
  • oma sauna
ParvekeAsunnossa on parveke
Parvekkeen kuvaus
  • Ilmansuunta: pohjoinen
  • Parveketyyppi: lasitettu
HissiTaloyhtiössä on hissi
Asuntoon kuuluu
  • kaapeli-tv
YleiskuntoHyvä
EnergialuokkaD2013
Lämmitysjärjestelmän kuvausKauko

Asunnon tilat ja materiaalit
  • Pääasiallinen rakennusmateriaali: muu
Katto
  • Tasakatto
  • Huopakate
Keittiön kuvaus
  • Lattiamateriaalit: parketti
  • Seinämateriaalit: maalattu
  • Varusteet: astianpesukone, liesituuletin / hormi
  • Liesi: induktioliesi
  • Jääkaappi ja pakastin: jääkaappi/pakastin
Kylpyhuoneen kuvaus
  • Lattiamateriaalit: laatta
  • Seinämateriaalit: kaakeli
  • Varusteet: pesukoneliitäntä, lattialämmitys, wc-istuin, suihku, peilikaappi, kiinteät valaisimet, kylpyhuonekaapisto
Saunan kuvaus
  • Lattiamateriaalit: laatta
  • Seinämateriaalit: puu
Olohuoneen kuvaus
  • Lattiamateriaalit: parketti
  • Seinämateriaalit: maalattu
Makuuhuoneiden kuvaus
  • Lukumäärä: 2
  • Lattiamateriaalit: parketti
  • Seinämateriaalit: maalattu

Taloyhtiön nimiAsunto Oy Helsingin Tervapääskynen
Isännöitsijän yhteystiedotIsännöitsijätoimisto Erkki Oksanen Oy Ristolantie 14, 00320 Helsinki Isännöitsijä Perttu Oksanen perttu.oksanen@eo.fi, 09 4777 940
Taloyhtiössä muutaIlmanvaihto: koneellinen. Sauna, pesutupa, ulkoiluvälinevarasto, kuivaushuone, kerhotila, lastenvaunuvarasto, väestönsuoja. 19 § Osakkeenomistajilla on oikeus asennuttaa parvekkeensa lasitus hallituksen etukäteen antaman kirjallisen luvan perusteella. Parvekelasitukset katsotaan osakkeenomistajan vastuulla olevaksi muutostyöksi, ja osakkeenomistaja vastaa kaikista lasituksen hankinta-, asennus-, huolto-, korjaus- ja poistokustannuksista. Parvekelasituksen kunnossapito- ja korjausvastuu kuuluu kokonaisuudessaan osakkeen omistajalle. Mikäli parvekelasitus aiheuttaa vahinkoa yhtiön rakenteille tai muille tiloille, vastaa osakkeenomistaja yhtiölle aiheutuneista korjauskustannuksista. Yhtiön hallituksella on oikeus vaatia osakkeenomistajaa poistamaan parvekelasit tarvittaessa, esimerkiksi rakenteellisten korjausten yhteydessä, osakkeenomistajan kustannuksella. 20 § Osakkeenomistajalla on oikeus asentaa ilmanlämpöpumppu tai rakentaa huoneistoon jälkikäteen sauna hallituksen etukäteen antaman kirjallisen luvan perusteella. Ilmalämpöpumpun tai jälkikäteen rakennetun saunan asentaminen katsotaan osakkeenomistajan vastuulla olevaksi muutostyöksi, ja osakkeenomistaja vastaa kaikista muutostyön hankinta-, asennus-, huolto-, korjaus- ja poistokustannuksista. Ilmalämpöpumppujen ja jälkikäteen rakennettujen saunojen kunnossapito- ja korjausvastuu kuuluu kokonaisuudessaan osakkeen omistajalle. 21 § Lyhytaikaisen vuokrauksen rajoittaminen. Osakkeenomistaja ei saa luovuttaa huoneistoa lyhytaikaiseen majoituskäyttöön, joka rinnastetaan hotellitoimintaan tai majoitustoimintaan, mukaan lukien Airbnb- ja vastaavat palvelut. Lyhytaikaisena majoituksena pidetään alle 30 vuorokauden pituisia vuokrasuhteita. 22 § Yhtiön on savuton, ja tupakointi kaikkialla yhtiön sisätiloissa, mukaan lukien yhteiset tilat, huoneistot, huoneistoparvekkeet ja kattoterassit
EnergialuokkaD2013
(Taloyhtiön) Rakennukseen tehdyt korjaukset ja remontit2012 Koneellinen ilmanvaihto keskus, vesi,- ja viemäriputket, lämmönvaihdin keskus, kiertovesipumppu, sähköpääkeskus, hissit, märkätilat, ikkunat, julkisivut, vesikatto, salaoja putket 2016 Energiatodistus 2018 Ilmanvaihtokanavat nuohottu 2022 Väestösuojan tiiveyskoe 2024 Porrashuoneiden korjaustyöt, parvekkeiden tiiveystyöt, parvekeovien korjaukset, Led-valaistus uusittu, Tekninen kuntoarvio 2025 Salaojaputkien tarkastukset (uudenveroiset, huuhtelua ei tarvittu), seinäkiinnikkeinen lipputanko tarkastettu, ei poistettu. Asennettu peltisepän toimesta vedenjohdatin, jotta vesi ei valu lipputangosta seinälle. 2025 Rakennusautomaation uusiminen ja päivitys, H2 pääkeskustilan varusteet
Tiedossa olevat tulevat korjaukset/remontit2026 Liesikupujen uusiminen 65 kpl, perusmuurin pinnoitteen paikkakorjaus, betonilattioiden maalaus (jätekatos) 2027 Kiukaiden kunnon tarkastus ja vaihto tarvittaessa, kuivaimien uusiminen, energiatodistus 2028 IV kanavien nuohous ja säätö 2030 Huoneistojen märkätila kartoitus. Mittauspöytäkirjat ja kartoitus, lämmityspattereiden patteriventtiilien ja termostaattien uusiminen, lämmönjakokeskuksen uusiminen, IV-koneiden lämmityksen säätöryhmien sekä jälkilämmityspatterin kiertovesipumppujen ja säätö- venttiilien uusiminen 2032 Väestösuojan tarkastus (Myös painetesti) 2033 Perusmuuripinnoitteen uusiminen tarvittaessa, betonilattioiden maalaus, palovaroittimien uusiminen
Tontin pinta-ala2845 m²
Tontin omistusOma